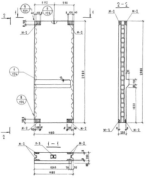
СБВЛ-12.2.30т-1л

Чертеж изделия:
Чертеж СБВЛ-12.2.30т-1л
Характеристики изделия:
ПараметрЗначение
Длина1180 мм
Ширина200 мм
Высота2980 мм
Масса1800 кг
Нормативный документСерии 1.134-1

Блоки внутренних  стен  по Серии 1.134-1.

СБВЛ-12.2.30т-1л   Стеновой блок внутренний лестничный.