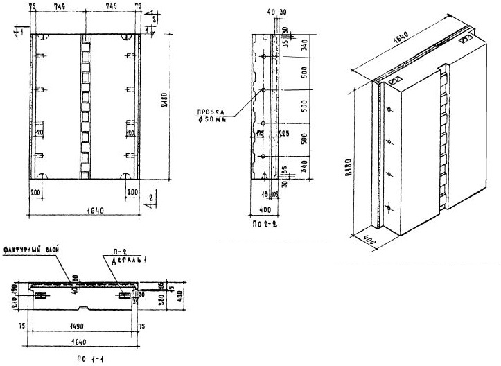
НБ-15.22.4-3

Чертеж изделия:
Чертеж НБ-15.22.4-3
Характеристики изделия:
ПараметрЗначение
Длина1640 мм
Ширина400 мм
Высота2180 кг
Масса2590 кг
Нормативный документСерия 1.133-1

Стеновые легкобетонные блоки толщиной 40 см по Серии 1.133-1.

НБ-15.22.4-3  Простеночный блок.